Bauherrenfachberatung
Menü
Kontakt
Preisinfo
Aktuelles
Impressum
Häuser
klassische Einfamilienhäuser
2-geschossige Einfamilienhäuser
Bungalows
Stadtvillen
Bauhaus
Aktionshäuser
Doppel- / 2Fam.-Häuser
Energiesparen & Haustechnik
Cumulus 980
4 Zimmer, Küche, Bad, Gäste-WC, Ankleide, Diele, HAR, Terrasse
Details:
Walmdach 25°, Erker mit Vordach, Putzfassade
Netto-Grundfläche:
ca. 127,93 m² (nach DIN277)
Wohnfläche:
ca. 126,18 m² (nach WoFlV)
Ausstattung
Ausstattungsvariante
zurück zur Hausübersicht
Preisinfo anfordern
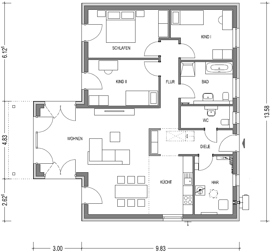
Grundriss
Erdgeschoss
Wohnfläche
Wohnen
35,64 qm
Schlafen
19,04 qm
Ankleide
6,30 qm
Gast
13,36 qm
Küche
11,37 qm
Bad
7,76 qm
WC
4,04 qm
Diele
6,60 qm
Garderobe
2,29 qm
HAR
10,66 qm
Terrasse
9,00 qm
Gesamt
126,04 qm
zurück zur Hausübersicht
Preisinfo anfordern