Bauherrenfachberatung
Menü
Kontakt
Preisinfo
Aktuelles
Impressum
Häuser
klassische Einfamilienhäuser
2-geschossige Einfamilienhäuser
Bungalows
Stadtvillen
Bauhaus
Aktionshäuser
Doppel- / 2Fam.-Häuser
Energiesparen & Haustechnik
Cumulus 780
4 Zimmer, Küche, Bad, Gäste-WC, Diele, Flur, HAR
Details:
Walmdach 25°, Putzfassade
Netto-Grundfläche:
ca. 125,87 m² (nach DIN277)
Wohnfläche:
ca. 126,89 m² (nach WoFlV)
Ausstattung
Ausstattungsvariante
zurück zur Hausübersicht
Preisinfo anfordern
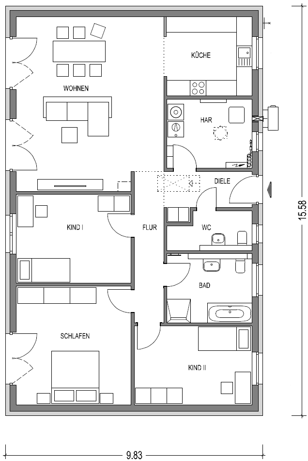
Grundriss
Erdgeschoss
Wohnfläche
Wohnen
36,81 qm
Schlafen
19,85 qm
Kind I
14,61 qm
Kind II
13,35 qm
Küche
9,84 qm
Bad
8,41 qm
WC
4,21 qm
Diele
5,04 qm
Flur
6,36 qm
HAR
8,41 qm
Gesamt
126,89 qm
zurück zur Hausübersicht
Preisinfo anfordern