Bauherrenfachberatung
Menü
Kontakt
Preisinfo
Aktuelles
Impressum
Häuser
klassische Einfamilienhäuser
2-geschossige Einfamilienhäuser
Bungalows
Stadtvillen
Bauhaus
Aktionshäuser
Doppel- / 2Fam.-Häuser
Energiesparen & Haustechnik
Cumulus 760
4 Zimmer, Küche, Bad, Gäste-WC, Diele, Flur, HAR
Details:
Walmdach 25°, Putzfassade
Netto-Grundfläche:
ca. 108,6 m² (nach DIN277)
Wohnfläche:
ca. 109,5 m² (nach WoFlV)
Ausstattung
Ausstattungsvariante
zurück zur Hausübersicht
Preisinfo anfordern
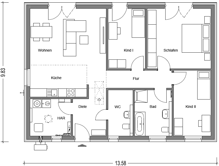
Grundriss
Erdgeschoss
Wohnfläche
Wohnen
23,89 qm
Schlafen
19,29 qm
Kind I
11,21 qm
Kind II
12,00 qm
Küche
8,96 qm
Bad
8,41 qm
WC
5,59 qm
Diele
7,07 qm
Flur
5,67 qm
HAR
7,44 qm
Gesamt
109,52 qm
zurück zur Hausübersicht
Preisinfo anfordern