Bauherrenfachberatung
Menü
Kontakt
Preisinfo
Aktuelles
Impressum
Häuser
klassische Einfamilienhäuser
2-geschossige Einfamilienhäuser
Bungalows
Stadtvillen
Bauhaus
Aktionshäuser
Doppel- / 2Fam.-Häuser
Energiesparen & Haustechnik
Cumulus 670
4 Zimmer, Küche, Bad, Gäste-WC, Diele, Flur, HAR
Details:
Winkelbungalow, Walmdach 25°, überdachte Terrasse
Netto-Grundfläche:
ca. 137,7 m² (nach DIN277)
Wohnfläche:
ca. 133,9 m² (nach WoFlV)
Ausstattung
Ausstattungsvariante
zurück zur Hausübersicht
Preisinfo anfordern
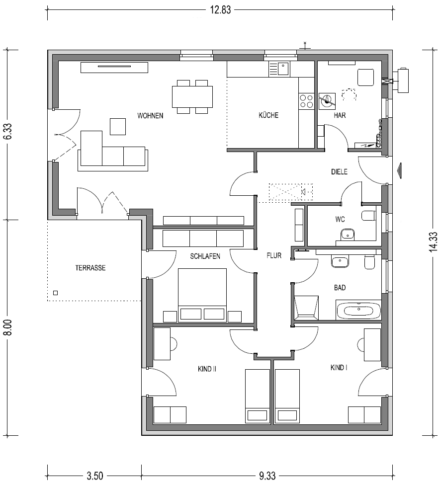
Grundriss
Erdgeschoss
Wohnfläche
Wohnen
39,30 qm
Schlafen
13,17 qm
Kind I
14,00 qm
Kind II
15,11 qm
Küche
10,45 qm
Bad
8,41 qm
WC
4,04 qm
Diele
8,56 qm
Flur
7,79 qm
HAR
7,61 qm
Terrasse
5,50 qm
Gesamt
133,94 qm
zurück zur Hausübersicht
Preisinfo anfordern