Bauherrenfachberatung
Menü
Kontakt
Preisinfo
Aktuelles
Impressum
Häuser
klassische Einfamilienhäuser
2-geschossige Einfamilienhäuser
Bungalows
Stadtvillen
Bauhaus
Aktionshäuser
Doppel- / 2Fam.-Häuser
Energiesparen & Haustechnik
Cumulus 540
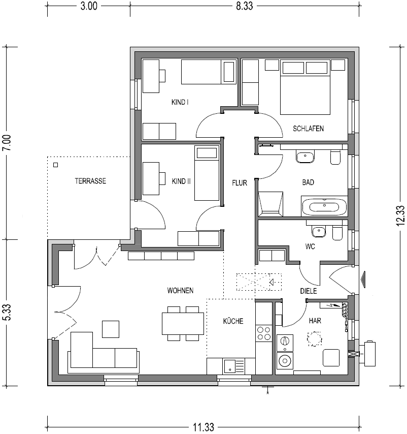
Wohnen, Küche, Kind I, Kind II, Bad, Gäste-WC, Diele, Flur, HAR, Terrasse
Details:
Winkelbungalow, Walmdach 25°, überdachte Terrasse
Netto-Grundfläche:
ca. 103,1 m² (nach DIN277)
Wohnfläche:
ca. 99,7 m² (nach WoFlV)
Ausstattung
Ausstattungsvariante
zurück zur Hausübersicht
Preisinfo anfordern
Grundriss
Erdgeschoss
Wohnfläche
Wohnen
25,76 qm
Schlafen
10,71 qm
Kind I
9,59 qm
Kind II
10,84 qm
Küche
6,37 qm
Bad
8,41 qm
WC
4,14 qm
Diele
4,69 qm
Flur
7,64 qm
HAR
6,79 qm
Terrasse
4,73 qm
Gesamt
99,67 qm
zurück zur Hausübersicht
Preisinfo anfordern