Calvus 636


Wohnen, Küche, Vorrat, Kind I, Kind II, Schlafen, Gast, Ankleide, Bad, Gäste-WC, HAR, Abstellraum, Diele, Flur, Studio

Details:
Satteldach 28°

Netto-Grundfläche:
ca. 241,5 m² (nach DIN277)
Wohnfläche:
ca. 202,5 m² (nach WoFlV)


Ausstattung
Ausstattungsvariante

zurück zur Hausübersicht     Preisinfo anfordern
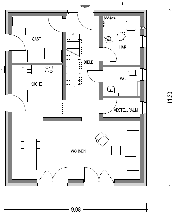
Grundriss Erdgeschoss
Erdgeschoss Wohnfläche
Wohnen 31,42 qm
Küche 11,55 qm
Gast 9,81 qm
WC 4,20 qm
Diele 12,35 qm
HAR 7,31 qm
Abstellraum 2,90 qm
EG Gesamt 79,54 qm

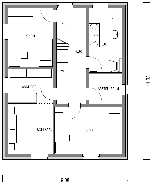
Grundriss Obergeschoss
Obergeschoss Wohnfläche
Schlafen 11,90 qm
Ankleide 7,94 qm
Kind I 15,50 qm
Kind II 13,85 qm
Bad 10,84 qm
Flur 11,37 qm
Abstellraum 4,96 qm
OG Gesamt 77,36 qm
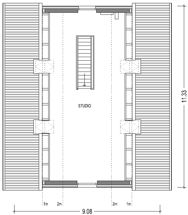
Grundriss Dachgeschoss
Dachgeschoss Wohnfläche
Studio 45,60 qm
OG Gesamt 45,60 qm

zurück zur Hausübersicht     Preisinfo anfordern