Calvus 634


Wohnen, Küche, Kind I, Kind II, Schlafen, Gast, Bad, Gäste-WC, HAR, Diele, Flur

Details:
Satteldach 25°

Netto-Grundfläche:
ca. 163,0 m² (nach DIN277)
Wohnfläche:
ca. 159,3 m² (nach WoFlV)


Ausstattung
Ausstattungsvariante

zurück zur Hausübersicht     Preisinfo anfordern
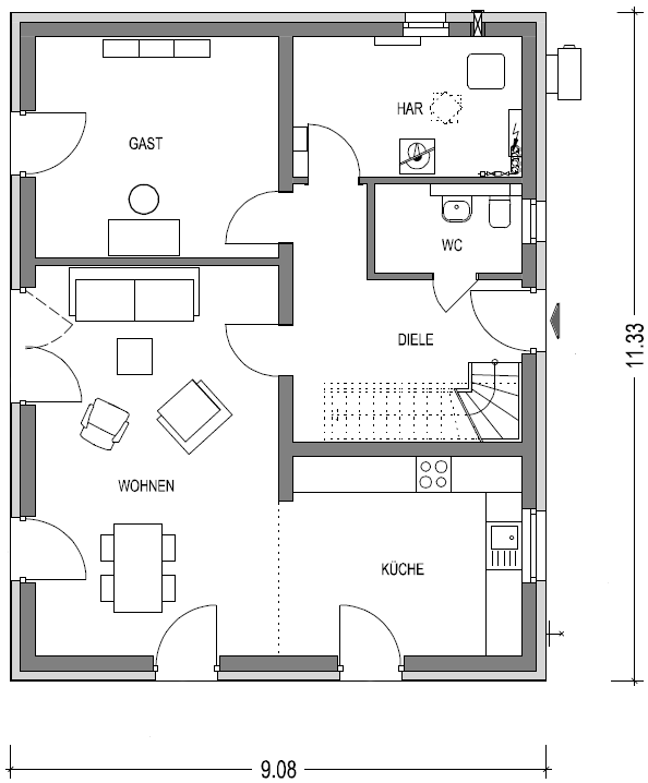
Grundriss Erdgeschoss
Erdgeschoss Wohnfläche
Wohnen 27,87 qm
Küche 13,79 qm
Gast 15,50 qm
WC 3,67 qm
Diele 10,26 qm
HAR 9,08 qm
EG Gesamt 80,17 qm

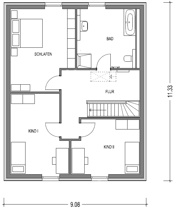
Grundriss Obergeschoss
Obergeschoss Wohnfläche
Schlafen 20,16 qm
Kind I 17,36 qm
Kind II 14,48 qm
Bad 14,06 qm
Flur 13,04 qm
OG Gesamt 79,10 qm

zurück zur Hausübersicht     Preisinfo anfordern