Arcus 161

Wohnen, Küche, Kind I, Kund II, Schlafen, Gast, Bad, Gäste-WC, HAR, Diele, Flur

Details:
Zeltdach 25°, 200 cm Drempel, in Niedersachsen 1-geschossig

Netto-Grundfläche:
ca. 167,6 m² (nach DIN277)
Wohnfläche:
ca. 158,6 m² (nach WoFlV)


Ausstattung
Ausstattungsvariante

zurück zur Hausübersicht     Preisinfo anfordern
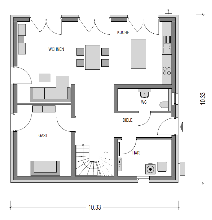
Grundriss Erdgeschoss
Erdgeschoss Wohnfläche
Wohnen 27,30 qm
Küche 14,25 qm
Gast 14,80 qm
WC 4,30 qm
Diele 15,82 qm
HAR 7,90 qm
EG Gesamt 84,37 qm

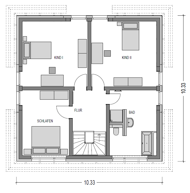
Grundriss Obergeschoss
Obergeschoss Wohnfläche
Schlafen 13,39 qm
Kind I 19,84 qm
Kind II 19,84 qm
Bad 13,91 qm
Flur 6,29 qm
DG Gesamt 74,27 qm

zurück zur Hausübersicht     Preisinfo anfordern