Alto 650


Wohnen, Küche, Kind I, Kind II, Kind III, Schlafen, Gast, Bad, Gäste-WC, HAR, Diele, Flur

Details:
Satteldach 45°, 90 cm Drempel

Netto-Grundfläche:
ca. 192,7 m² (nach DIN277)
Wohnfläche:
ca. 173,8 m² (nach WoFlV)


Ausstattung
Ausstattungsvariante

zurück zur Hausübersicht     Preisinfo anfordern
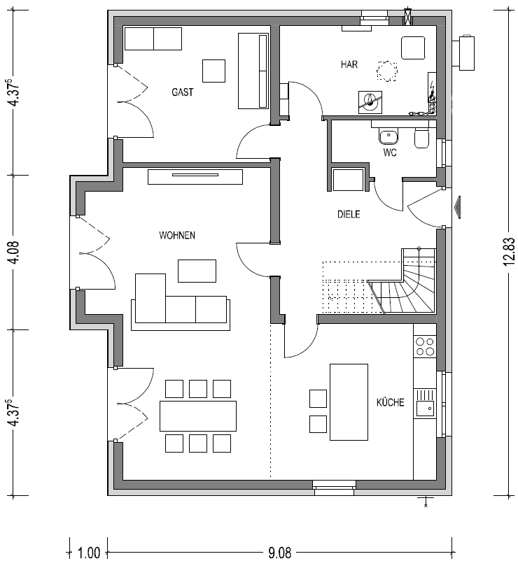
Grundriss Erdgeschoss
Erdgeschoss Wohnfläche
Wohnen/Essen 35,69 qm
Küche 17,90 qm
Gast 14,23 qm
WC 3,67 qm
Diele 14,49 qm
HAR 9,67 qm
EG Gesamt 95,65 qm

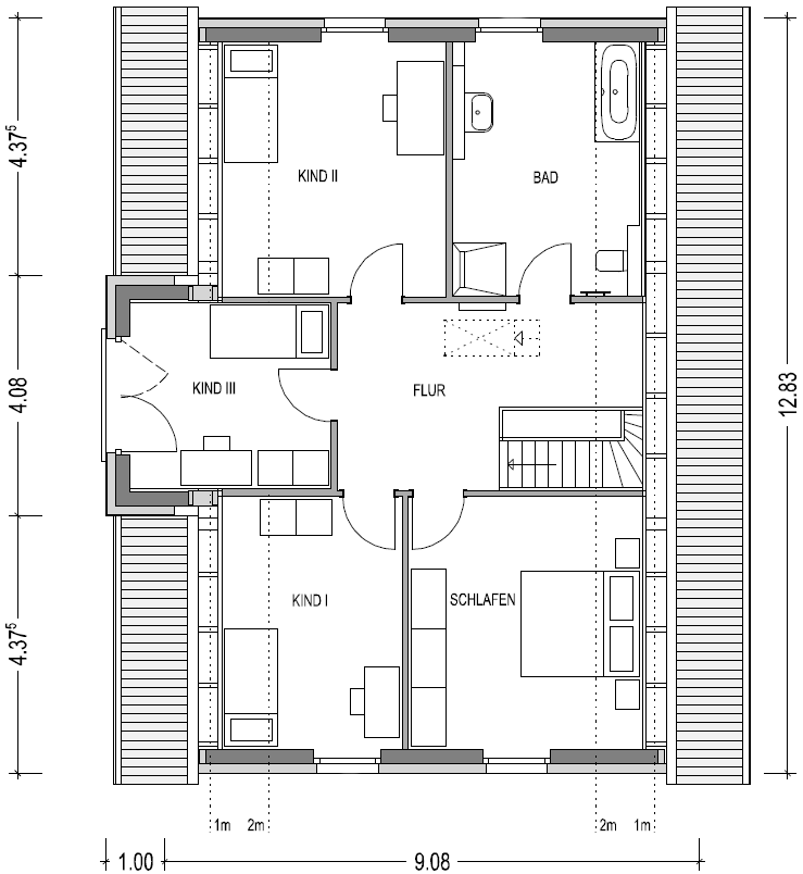
Grundriss Dachgeschoss
Dachgeschoss Wohnfläche
Schlafen 15,92 qm
Kind I 12,03 qm
Kind II 15,38 qm
Kind III 11,08 qm
Bad 12,05 qm
Flur 12,73 qm
DG Gesamt 79,19 qm

zurück zur Hausübersicht     Preisinfo anfordern