Alto 510


Wohnen, Küche, Kind I, Kind II, Schlafen, Gast, Ankleide, Bad, Gäste-WC, HAR, Diele, Flur

Details:
Satteldach 45°, 90 cm Drempel

Netto-Grundfläche:
ca. 135,2 m² (nach DIN277)
Wohnfläche:
ca. 117,6 m² (nach WoFlV)


Ausstattung
Ausstattungsvariante

zurück zur Hausübersicht     Preisinfo anfordern
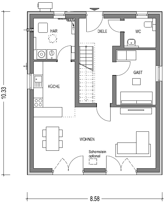
Grundriss Erdgeschoss
Erdgeschoss Wohnfläche
Wohnen/Essen 28,87 qm
Küche 9,09 qm
Gast 8,63 qm
WC 3,67 qm
Diele 10,05 qm
HAR 6,79 qm
EG Gesamt 67,10 qm

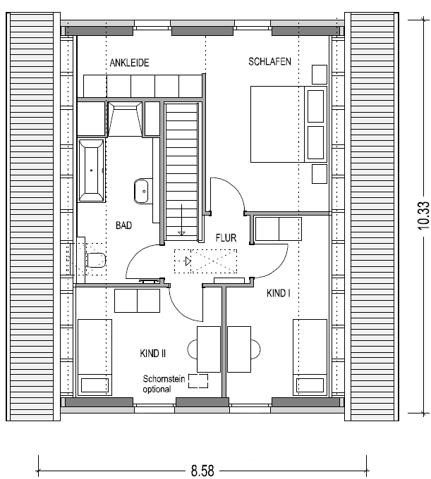
Grundriss Dachgeschoss
Dachgeschoss Wohnfläche
Schlafen 13,72 qm
Ankleide 4,74 qm
Kind I 10,31 qm
Kind II 10,41 qm
Bad 7,98 qm
Flur 3,33 qm
DG Gesamt 50,49 qm

zurück zur Hausübersicht     Preisinfo anfordern