Aktionshaus S530


Wohnen, Küche, Kind I, Kind II, Schlafen, Bad, Gäste-WC, HAR, Diele, Flur

Details:
Satteldach 45°, 90 cm Drempel

Netto-Grundfläche:
ca. 153,3 m² (nach DIN277)
Wohnfläche:
ca. 133,0 m² (nach WoFlV)


Ausstattung
Ausstattungsvariante

zurück zur Hausübersicht     Preisinfo anfordern
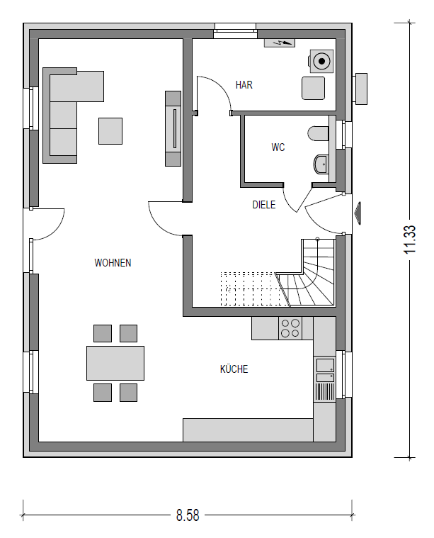
Grundriss Erdgeschoss
Erdgeschoss Wohnfläche
Wohnen/Essen 39,43 qm
Küche 12,87 qm
Gäste-WC 4,07 qm
Diele 11,59 qm
HAR 6,92 qm
EG Gesamt 74,88 qm

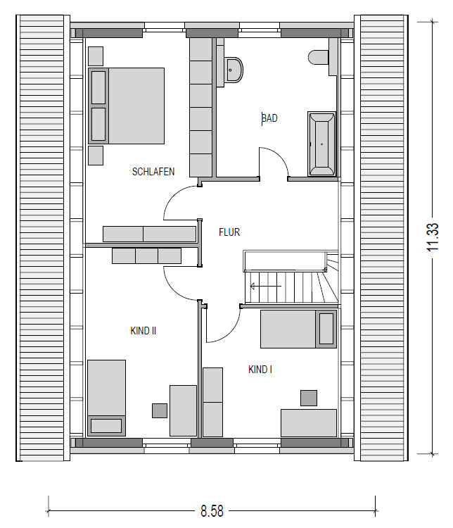
Grundriss Dachgeschoss
Dachgeschoss Wohnfläche
Schlafen 15,89 qm
Kind I 11,20 qm
Kind II 13,28 qm
Bad 9,99 qm
Flur 7,71 qm
DG Gesamt 58,07 qm

zurück zur Hausübersicht     Preisinfo anfordern